




Тесла Глоубетин
| Планировка | от 1+kk до 4+kk |
|---|---|
| Площадь | от 32 m² до 130 m² |
| Цена | от 6.008.262 до 21.644.036 CZK |
| Дата сдачи | I - 2024, II - 2025, III - 2026 |
| Расположение | Прага 9 - Глоубетин |
| Метро | B - Hloubětín, B - Českomoravská |
| Минут от центра | 16 |
О проекте
новый современный жилой район, который станет популярным местом проживания с богатой городской инфраструктурой, зелёными насаждениями, а также качественным общественным пространством.
В зданиях класса энергоэффективности B покупателям предлагаются квартиры с продуманными и практичными планировками от 1+кк до 5+кк. Свой дом здесь найдёт не только молодёжь и молодые пары, но и семьи с детьми. Все квартиры оборудованы современной системой принудительного проветривания с рекуперацией тепла. Квартиры на верхнем этаже и некоторые квартиры на других этажах оборудованы системой кондиционирования и внешними рольставнями. Большинство квартир имеет балкон, лоджию, террасу или палисадник, подземные парковочные места и кладовки уже включены в цену.
К некоторым квартирам прикреплены парковочные места и кладовые, которые не входят в указанную стоимость и докупаются отдельно.
Условия оплаты
Без рассрочки
При подписании резервационного договора оплачивается 50.000 крон, в течение 30 дней 95% от покупной стоимости, 5% после окончания строительства
С рассрочкой
Возможно оговорить индивидуальные условия оплаты с минимальным первоначальным платежом 10%. Условия процентной рассрочки зависят от графика платежей.
| Тип проекта | Многофункциональное здание |
|---|---|
| Категория жилья | комфорт |
| Тип собственности | частная |
| Состояние здания | новостройка |
| Состояние объекта/ов | отделка под ключ |
| Всего этажей | 7 |
| Парковка в доме | подземная парковка |
| Энергетический класс | B |
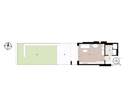
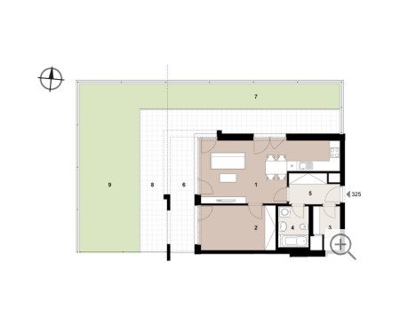
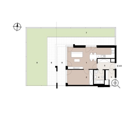
Квартиры
Расположение
Проект возводится в быстро развивающемся районе Праги 9 неподалёку от Кейржова парка и реки Рокитки возле трамвайных остановок на Подебрадской улице неподалёку от станции метро Глоубетин (ветка В). На первых этажах квартирных домов возникнет большое количество коммерческих помещений для магазинов, включая супермаркет, предприятий услуг, ресторанов и кафе. В проекте предусмотрены два детских сада, несколько детских игровых площадок, фитнес зоны под открытым небом для взрослых, площадка для игры в петанк. Внутри проекта возникнут тихие дворы и открытое пространство с общественным парком и пешеходной зоной с зелёными насаждениями.



Интересные места в районе











График стр-ва
- I. ЭТАП - Тесла Глоубетин
- Старт продаж11/2021
- Ввод в эксплуатацию12/2024
- Передача ключей02/2025
- II ЭТАП - Тесла Глоубетин
- Старт продаж04/2024
- Коробка здания12/2024
- Ввод в эксплуатацию12/2025
- Передача ключей02/2026
- III ЭТАП - Тесла Глоубетин
- Старт продаж10/2024
- Начало строительства09/2024
- Коробка здания02/2026
- Передача ключей02/2027
Как купить
Запрос
Если Вас заинтересовал объект, Вы можете оставить заявку на этой странице или связаться с нами напрямую по телефону +420222265888. Мы будем рады предоставить Вам полную информацию и показать объект.
Приобретение on-line
Объект можно приобрести удаленно по интернету без личного присутствия. Организуем для Вас виртуальный тур, обеспечим подписание договоров и всех необходимых документов, при необходимости примем объект за Вас и возьмем в управление.
Финансирование
Мы будем рады предоставить Вам финансирование на самых выгодных условиях. Сотрудничаем со всеми банками Чехии без комиссии за наши услуги.




































































































































