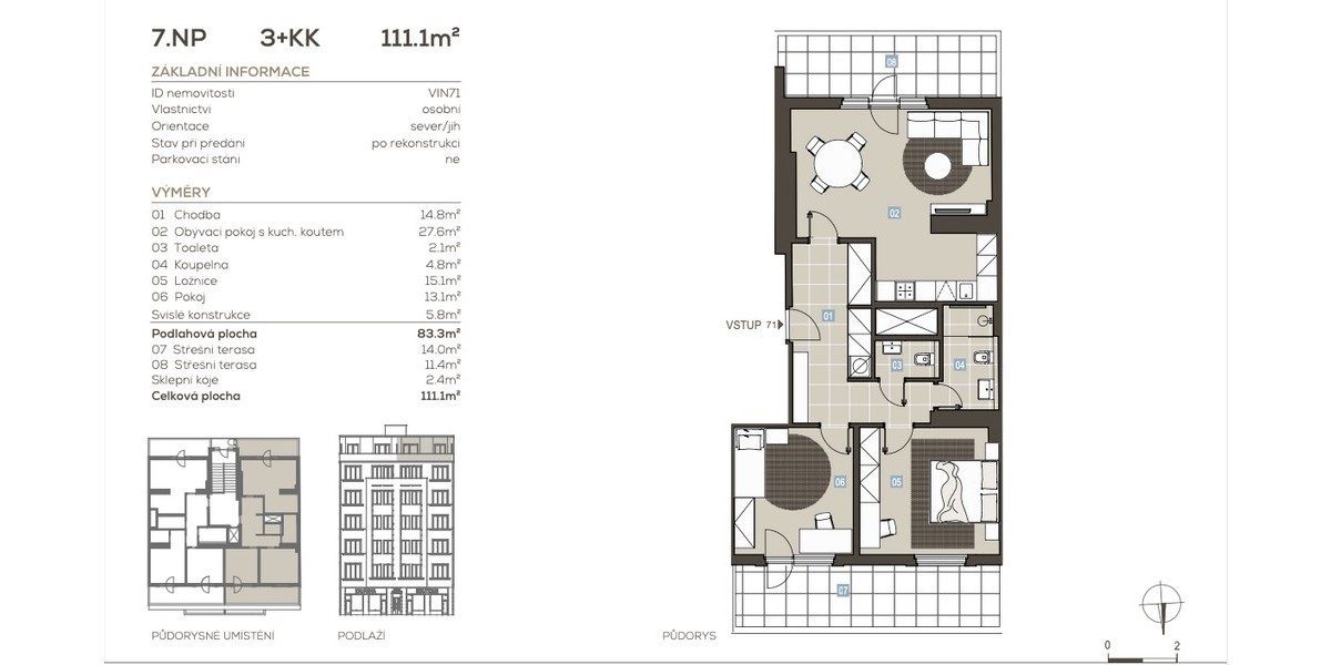
Квартира 3+kk, 111.1 m2
Прага 3 - Винограды
Номер объекта71ЖК Виноградска 160
| Планировка | 3+kk |
|---|---|
| Площадь | 111.1 м² |
| Терраса | 25.4 м2 |
| Срок сдачи | к заселению |
| Цена | По запросу |
| Статус объекта | свободно |
| Расположение | Прага 3 - Винограды |
| Метро | A - Flora |
| Минут от центра | 15 мин. |
Информация об объекте
| Тип собственности | частная |
|---|---|
| Этаж / Всего этажей | 7 / 7 |
| Особенность объекта | с видом, с террасой, пентхаус, последний этаж, элитная недвижимость |
| Кладовая | 2.4 m² |
| Ориентация окон | юг, север |
| Состояние здания | реконструкция |
| Состояние объекта/ов | fit out |
| Энергетический класс | E |
