Квартира 1+kk, 5.9 m2
Прага 3 - Жижков
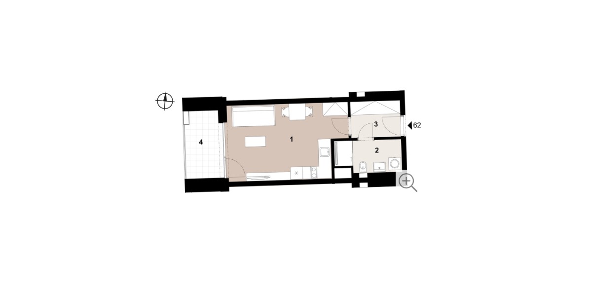
Номер объектаH62ЖК Парковый квартал
| Планировка | 1+kk |
|---|---|
| Площадь | 5.9 м² |
| Сдача | октябрь 2026 |
| Срок сдачи | идет строительство |
| Цена | 6.871.445 CZK |
| Статус объекта | свободно |
| Расположение | Прага 3 - Жижков |
| Метро | A - Želivského |
| Минут от центра | 10 мин. |
Информация об объекте
| Тип собственности | частная |
|---|---|
| Этаж / Всего этажей | 5 / 6 |
| Особенность объекта | инвестиционная квартира, с парковочным местом, с балконом |
| Кладовая | 4.7 m² |
| Количество парковочных мест | 1 |
| Ориентация окон | запад |
| Состояние здания | новостройка |
| Состояние объекта/ов | отделка под ключ |
| Энергетический класс | B |
